Le cloître de l’abbaye de Saint-Gilles-du-Gard révélé par l’archéologie

Façade de l’église abbatiale de Saint-Gilles-du-Gard. © M. Couval, Mosaïques Archéologie
Port le plus oriental du royaume de France à la fin du Moyen Âge, Saint-Gilles-du-Gard devient au XIe siècle le point de rendez-vous de tous les pèlerins se rendant en Terre sainte. L’abbaye, autour de laquelle la ville s’est formée, était elle-même une destination de pèlerinage très prisée. L’édifice visible aujourd’hui est le fruit d’une histoire tumultueuse et seuls quelques éléments remarquables, comme la façade richement décorée de l’église abbatiale, ont traversé les siècles. Depuis les années 1970, le site a fait l’objet de plusieurs interventions archéologiques, dont la plupart a concerné le cloître. Voici un premier bilan de décennies de recherches.
Originaire d’Athènes, Aegidius, qui va devenir saint Gilles, aurait choisi à la mort de ses parents, au VIIe siècle, de vivre dans la pauvreté. Il se retire d’abord en ermitage sur les bords du Gardon, puis part s’installer, toujours en ermite, à l’emplacement actuel de Saint-Gilles. La légende raconte comment après avoir sauvé une biche, il aurait fondé une abbaye à la demande du roi wisigoth Flavius, sur les terres de la vallée flavienne.
La longue histoire de l’abbaye
D’après les sources écrites, les origines de l’abbaye de Saint-Gilles remontent à l’époque carolingienne : en 814, un diplôme de Louis le Pieux évoque une cellula (petite cellule) sous le vocable de Saint-Pierre. C’est dans le testament du comte de Rouergue, en 961, qu’apparaît la première mention de la dédicace à Saint-Gilles, quelques années après l’invention des reliques du saint. Au milieu du XIe siècle, ce pèlerinage était considéré comme l’un des plus importants du monde chrétien (juste après ceux de Jérusalem, Rome et Saint-Jacques-de-Compostelle). Le XIIe siècle marque son apogée avec l’édification d’une grande abbaye, avant un déclin progressif dès le siècle suivant. Le monastère voit alors ses revenus diminuer, à tel point que le chantier de l’église abbatiale n’est toujours pas achevé en 1538, alors que les bâtiments monastiques sont d’ores et déjà qualifiés d’insalubres. Dans le courant de ce XVIe siècle, en pleine guerre de Religions, l’abbaye est gravement endommagée. Les pierres issues des ruines des anciens chevet et clocher servent notamment à la reconstruction de l’église, dans de moindres dimensions, entre 1650 et 1655. Si le cloître est abandonné en tant que tel, l’espace reste occupé : ainsi, au début du XVIIe siècle, l’aile orientale se transforme en chapelle pour la confrérie des Pénitents blancs. Mais les lieux sont ensuite peu à peu démantelés, jusqu’à la disparition totale du déambulatoire, lors de la vente de l’abbaye comme bien national, en 1791.

Angle du bâtiment daté des VIe et VIIe siècles. © L. Buffat, Mosaïques Archéologie
Une occupation ancienne
Datées des VIe et VIIIe siècles, de larges fosses d’extraction pour la construction en terre crue sont attestées sous les niveaux du monastère. Or, un bâtiment contemporain, probablement en terre, dont seules restent les fondations, a également été découvert lors des différentes fouilles. Associé à un grand silo pour stocker les céréales, il témoigne pour le moment des plus anciennes traces d’occupation connues sous le village actuel. La découverte d’une tombe en bâtière, du début du VIe siècle, interroge en outre sur la proximité d’un édifice paléochrétien. Après un hiatus au IXe siècle, de nouveaux silos à grains sont aménagés au Xe siècle, dont certains ont une contenance estimée à près de 10 m3. Le XIe siècle est enfin marqué par la présence de bâtiments en terre crue qui, bien que rapidement démolis, ont probablement un lien avec le premier monastère.
Porte menant de la crypte au cloître, partiellement bouchée au fur et à mesure du rehaussement du niveau de sol extérieur. © A. Gravier et F. Ortis, Mosaïques Archéologie
« Les recherches archéologiques récentes ont démontré que la construction de l’abbaye au XIIe siècle s’est déroulée en deux temps. »
L’évolution du déambulatoire
Les recherches archéologiques récentes ont démontré que la construction de l’abbaye au XIIe siècle s’est déroulée en deux temps. La première église abbatiale était de dimensions modestes, son emprise correspondant vraisemblablement à celle du vaisseau central de la crypte actuelle. Le cloître et les bâtiments conventuels se trouvaient au sud. Mais en raison de sa situation topographique particulière, en bordure d’un relief, l’abbaye a dû s’adapter. C’est pourquoi l’accès au cloître depuis l’église abbatiale se faisait par la crypte. Les galeries, qui mesuraient 3 m de large, étaient surmontées d’un étage formant un second niveau de circulation, dont les bâtiments de l’aile méridionale conservent la trace. Un demi-siècle plus tard, l’église est remplacée par un édifice beaucoup plus vaste, réduisant la surface du cloître de plus d’un quart. Bien que des projets d’agrandissement vers le sud aient été envisagés, ils n’ont jamais été réalisés. Par conséquent, la galerie nord est rebâtie en donnant au cloître un plan trapézoïdal peu classique.

Projection du plan de l’ancien cloître en rouge par rapport aux bâtiments actuels. © H. Hansen, UMR7598 LA3M, Aix-en-Provence
L’ornementation du cloître
Les fouilles du cloître ont révélé de nombreux fragments sculptés, principalement dans les couches de démolition. Leur état, très incomplet, est lié au fait que ces blocs ouvragés, difficilement réutilisables, ont généralement été broyés pour être transformés en chaux. La moitié de ces éléments, stylistiquement cohérents avec la façade de l’abbatiale, est attribuée à la fin du XIIe siècle et au début du XIIIe siècle. Elle inclut des personnages et provient probablement des ornements des galeries, tels que les chapiteaux. Un autre groupe, daté du XIVe siècle, se caractérise par une face moulurée et une feuille de chêne stylisée.

Fragment de décor sculpté. © M.-P. Bonetti, Mosaïques Archéologie
Une nécropole sous le jardin
Le jardin central du cloître a servi de lieu de sépulture, de sa création à 1718. Cette utilisation a conduit à une superposition des tombes sur une épaisseur moyenne de 1,20 m. L’évolution des pratiques funéraires est visible au fil des périodes. Les modes d’inhumation sont classiques : coffres en pierres, coffres en bois ou en fosses, parfois munies d’un couvercle. Les premiers font partie des plus anciens et se situent principalement le long des murs-bahuts supportant les arcades. Dès la création de cet espace funéraire, l’admission des femmes indique qu’il n’était pas exclusivement réservé aux religieux de Saint-Gilles. Lors de sa laïcisation, les enfants y sont également intégrés, dans un secteur réservé. Les galeries du cloître ont aussi accueilli des sépultures plus privilégiées et même probablement des structures funéraires monumentales.
Sépultures dans le jardin du cloître. À gauche, la zone jaune correspond à la tranchée de récupération de la maçonnerie du mur soutenant les arcades de la galerie sud. © L. Buffat, Mosaïques Archéologie
Un système hydraulique soigné
Lors des différentes fouilles réalisées dans le cloître, les vestiges d’une grande canalisation en calcaire finement taillé ont été retrouvés. Cette dernière prend naissance au pied du contrefort situé à l’est de la porte d’accès à la crypte. Malheureusement, les rénovations ponctuelles du XIXe siècle ont effacé les traces permettant de déterminer sa source d’alimentation en eau. Un lien possible avec le puits de la crypte est évoqué, mais reste à confirmer. Après avoir traversé le cloître, la canalisation aboutit dans l’angle sud-ouest du jardin, où un niveau de mortier, portant les empreintes d’un ancien sol dallé, a été mis au jour. Cet espace était donc construit et exempt de sépulture. Il abritait alors une fontaine, aussi appelée lavabo, utilisée pour les ablutions des moines. En dehors de cette conduite d’eau et de l’amorce du système d’évacuation vers l’extérieur, peu d’indices subsistent pour restituer l’aspect de cet ensemble.

Plan de la canalisation qui traverse le cloître. © M. Couval et A. Masbernat-Buffat, Mosaïques Archéologie
Une disparition progressive
De la fin du XVIIe siècle à la seconde moitié du XVIIIe siècle, le cloître a subi une transformation radicale. Ses galeries ont été entièrement détruites, allant jusqu’à l’enlèvement des dalles au sol et à la récupération systématique des pierres des murs. Après cette phase de destruction, le secteur connaît de nouvelles utilisations, notamment agricoles. Elles ont perturbé, voire transpercé par endroits, les vestiges datant du Moyen Âge, ne laissant qu’une vision fragmentée d’un cloître qui était tout aussi majestueux que la façade de l’abbatiale…
Espace du lavabo avec les empreintes de dalles sur le radier en mortier. © M. Couval, Mosaïques Archéologie
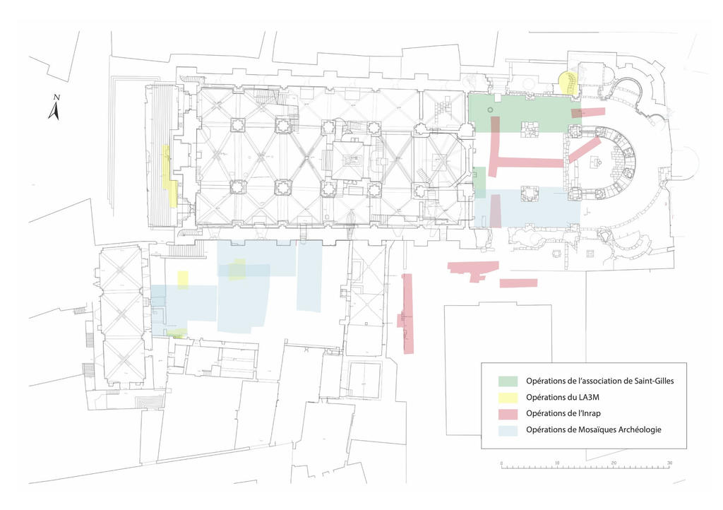
Les différentes interventions archéologiques dans l’abbaye
Depuis les années 1970, le site de l’abbaye de Saint-Gilles suscite l’intérêt de la communauté archéologique mais les recherches ont connu une impulsion, dans les années 2000, grâce aux travaux de Heike Hansen et Andreas Hartmann-Virnich. À partir de 2015, les opérations se sont multipliées, notamment avec le projet de restauration de cet ensemble architectural mené par la Ville.

Plan des différentes interventions archéologiques menées à l’abbaye de Saint-Gilles. © M. Couval, Mosaïques Archéologie
Variété des études architecturales
Dès la fin des années 1990, Heike Hansen (UMR7598 LA3M, Aix-en-Provence) entreprend, dans le cadre d’une thèse universitaire, le relevé de l’ensemble du complexe monastique. De 2009 à 2011, un programme de recherche franco-allemand « AEGIDIANA. L’abbaye de Saint-Gilles-du-Gard. Recherches archéologiques, d’archéologie du bâti et archivistiques sur l’histoire monumentale d’un chef-d’œuvre oublié de l’art roman en France » est mené, suivi de 2012 à 2017 par un projet collectif de recherche « AEGIMAIOR. L’ancienne abbaye de Saint-Gilles-du-Gard. Archéologie et histoire monumentale d’un site monastique majeur du Midi de la France », dirigé par Andreas Hartmann-Virnich (UMR7598 LA3M, Aix-en-Provence). En parallèle, une étude est conduite en 2013 et 2014 par Maxime Seguin (UMR7598 LA3M, Aix-en-Provence) sur l’escalier à vis situé au niveau de l’ancien chœur.
Une succession d’opérations
Dans les années 1970, des sondages sont ouverts dans l’ancien chœur et dans le cloître, réalisés par l’association d’Histoire, d’Archéologie et de Sauvegarde de Saint-Gilles (sous la responsabilité de Roselyne Jéolas). En 2004, le pied de la façade et la crypte sont, à leur tour, sondés par Christian Markiewicz (UMR7598 LA3M, Aix-en-Provence), qui effectue en 2009 des tests dans le cloître. Les premières fouilles d’ampleur dans cet espace remontent à 2010. Puis une seconde session se déroule en 2014-2015, sous la direction d’Aurélie Masbernat-Buffat, Loïc Buffat (Mosaïques Archéologie) et Andréas Hartmann-Virnich. En 2015 et 2016, Marie Rochette (Inrap) conduit des diagnostics sur la place Émile Zola et dans l’ancien chœur, qui donnent lieu à une fouille préventive dans la partie sud de ce dernier, en 2017-2018, par Marilou Couval. Enfin, en 2021 et 2022, de nouveaux sondages sont ouverts dans le cloître par Marilou Couval et Camille Meunier (Mosaïques Archéologie). M. C. et A. M.-B.





